Dinsdag 2 april tot en met vrijdag 21 juli worden er werkzaamheden verricht aan het parkeerdek in de parkeergarage Westzeedijk, richting ingang Ad, Ba, Bd, Ca, Cb en Dp. Het parkeerdek wordt in zijn geheel vervangen omdat het niet meer waterdicht is en lekkages veroorzaakt in het ondergelegen gebied. Tijdens de werkzaamheden kunnen ongeveer 50 parkeerplaatsen niet gebruikt worden.
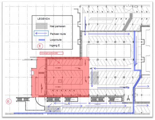
Het parkeerdek bevindt zich ter hoogte van Cb-01 (zie afbeelding 1). Het aangegeven gebied wordt vervangen. Tijdens de werkzaamheden is er een omleidingsroute (zie afbeelding 2) zodat ingang (-E) alsnog gebruikt kan worden. In de parkeergarage komen tijdelijke zebrapaden en bewegwijzering.
50 parkeerplaatsen
Tijdens de verbouwing zullen ongeveer 50 parkeerplaatsen wegvallen; hier zijn helaas geen vervangende parkeerplaatsen voor. Ook zal de betaalautomaat bij ingang Ca buiten gebruik zijn, om te betalen kunt u de betaalautomaten bij ingang 3 gebruiken.
Werktijden
De werkzaamheden zijn van 07.00 tot 17.00 uur. Er wordt rekening gehouden met de rusttijden van het ziekenhuis: tussen 07.00-09.00 uur en 12.00-14.00 uur zijn er geen overlast-gevende werkzaamheden.
Op het onoverdekte deel van het parkeerdek wordt een tentconstructie geplaatst. Hierdoor kunnen de werkzaamheden zo ongestoord mogelijk doorgaan en zijn deze niet afhankelijk van de weersomstandigheden.

